Αρχική Αποτελέσματα αναζήτησης Κατοικία Διαμέρισμα Κωδικος ακινητου 21398 διαμερισμα νεοδμητο Ανωθεν περιφερειακου στον Ευοσμο
Επαγγελματίας
4 μήνες πρίν
170 Προβολές

Κωδικος ακινητου 21398 διαμερισμα νεοδμητο Ανωθεν περιφερειακου στον Ευοσμο

Κατοικία
Διαμέρισμα
Μακεδονία
Θεσσαλονίκη - Περιφ/κοί δήμοι
Ολυμπιάδος 27, Κορδελιό Εύοσμος 562 38, Ελλάδα
€200.000
Κατάσταση ακίνητου: Υπό κατασκευή
Υπνοδωμάτια: 2
Μπάνια: 1
Έτος κατασκευής: 2026
Εμβαδόν ακινήτου: 93τ.μ.

Κωδικος ακινητου 21398
πωλειται νεοδμητο διαμερισμα Ανωθεν περιφερειακου στον Ευοσμο
η αποπερατωση θα γινει τον Φεβρουαριο του 2026 , κατασκευαζεται συμφωνα με τους νεους οικοδομικους κανονισμους , με θερμοπροσοψεις και θερμομονωσεις , αριστης κατασκευης ,
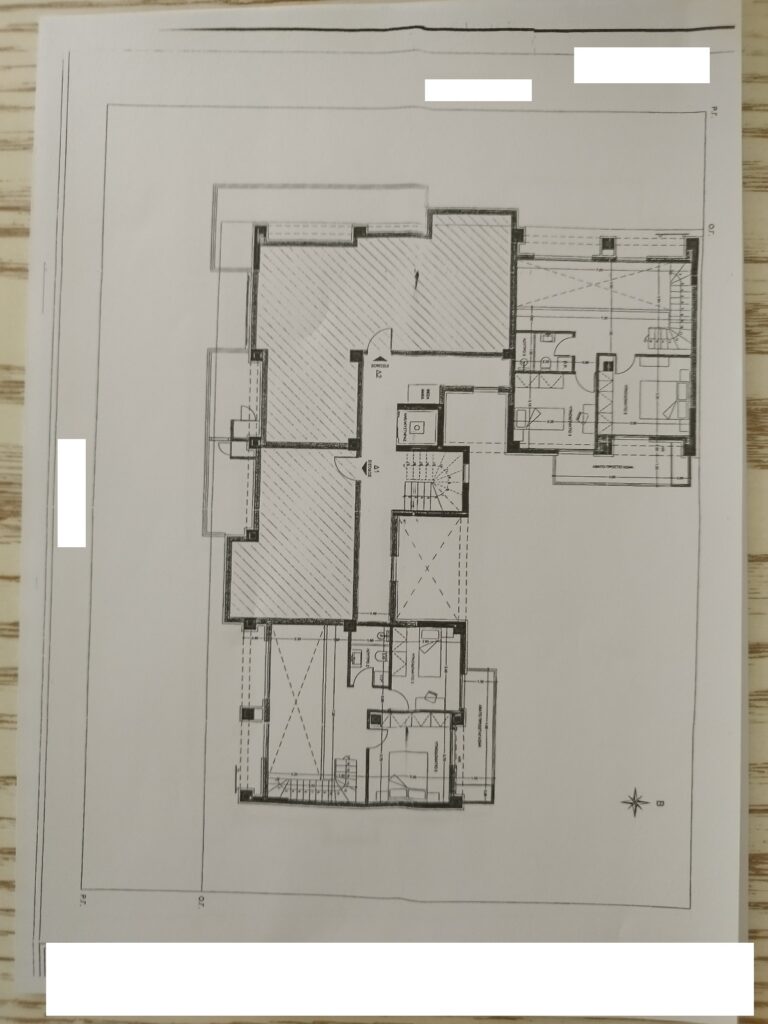
στα 93 τ.μ. , στον 3ο οροφο , με ασανσερ που φτανει μεχρι το υπογειο ( -1 ) ,
με δυο δωματια , σαλοκουζινα και μπανιο ,
εχει ενδοδαπεδια θερμανση ατομικου φυσικου αεριου , τα κουφωματα ειναι pvc ανακλησης , διαθετει θωρακισμενη πορτα ,
με παρκινγκ συγκεκριμενο πυλωτης και αποθηκη 5 τ.μ. ,
υπαρχει προσβαση για ατομα Α.Μ.Ε.Α. , με ανετα μπαλκονι 25 τ.μ. ,
εχει προεγκατασταση ηλιακου θερμοσιφωνα , a/c ψυξης – θερμανσης και συναγερμου με καμερες , ειναι πολυ φωτεινο ,
ευαερο , ευηλιο , προσοψεως , γωνιακο , νοτιου προσανατολισμου ,
βρισκεται πολυ κοντα σε παρκα , καταστηματα , στασεις λεωφορειων , καφε , με γρηγορη προσβαση στην περιφερειακη οδο ,
στο κεντρο Ευοσμου και στις γειτονικες περιοχες , αμεσα διαθεσιμο προς πωληση .
Τιμη πωλησης : 200.000 ευρω
Για την πρώτη υπόδειξη ακινήτου ορίζεται το ποσό των 10 ευρώ με ΦΠΑ ,
ανεξάρτητα από τον αριθμό των ακινήτων και των υποδείξεων που θα πραγματοποιηθούν .
Απαραίτητη η προσκόμιση αστυνομικής ταυτότητας και ΑΦΜ.
Για οποιαδήποτε πληροφορία , καλέστε στο Μεσιτικό Γραφείο Καραουλάνη
Τηλέφωνα επικοινωνίας : 2310765495 // 6987494959
Για περισσότερα ακίνητα επισκεφθείτε το site του γραφείου μας: www.karaoulani.gr

ΜΕΣΙΤΙΚΟ ΓΡΑΦΕΙΟ ΣΤΟΝ ΕΥΟΣΜΟ
Για την πρώτη υπόδειξη ακινήτου ορίζεται το ποσό των 10 ευρώ με ΦΠΑ , ανεξάρτητα από τον αριθμό των ακινήτων και των υποδείξεων που θα πραγματοποιηθούν . Απαραίτητη η προσκόμιση αστυνομικής ταυτότητας και ΑΦΜ. Για οποιαδήποτε πληροφορία , καλέστε στο Μεσιτικό Γραφείο Καραουλάνη Τηλέφωνα επικοινωνίας : 2310765495 // 6987494959 Για περισσότερα ακίνητα επισκεφθείτε το site του γραφείου μας: www.karaoulani.gr

Επιπλέον Χαρακτηριστικά

Αποθήκη
Ασανσέρ
Βεράντα
Θέα
Θέση στάθμευσης
Κατοικίδια ευπρόσδεκτα
Πόρτα ασφαλείας
Αυτόνομη θέρμανση
Ενδοδαπέδια θέρμανση
Φυσικό αέριο
Ενεργειακή κλάση: Α+
Πρόσβαση: Άσφαλτος
Ζώνη: Οικιστική

Listing ID Number:

72101

Πληροφορίες αγγελιοδότη

vickykaraou@hotmail.com
Μέλος από: 2 έτη
Ο χρήστης είναι εκτός σύνδεσης
28ης Οκτωβριου 24 ευοσμος
Δείτε όλες τις Αγγελίες

Βρες στεγαστικό δάνειο με σταθερό επιτόκιο από 2%, με προσωπικό σύμβουλο, χωρίς κόστος.
Συμπλήρωσε τα στοιχεία σου και ένας σύμβουλος θα σε καλέσει χωρίς καμία χρέωση.

Προσθήκη στα αγαπημένα
Προσθήκη για σύγκριση
Αναφορά κατάχρησης
© 2026 agx.gr. All rights reserved.