Αρχική Αποτελέσματα αναζήτησης Κατοικία Διαμέρισμα Κωδικος ακινητου 21432 διαμερισμα νεοδμητο στην Ν.Πολιτεια Ευοσμου
Επαγγελματίας
4 μήνες πρίν
140 Προβολές

Κωδικος ακινητου 21432 διαμερισμα νεοδμητο στην Ν.Πολιτεια Ευοσμου

Κατοικία
Διαμέρισμα
Μακεδονία
Θεσσαλονίκη - Περιφ/κοί δήμοι
Ελευθερίας 2, Εύοσμος 562 24, Ελλάδα
€180.000
Κατάσταση ακίνητου: Υπό κατασκευή
Υπνοδωμάτια: 2
Μπάνια: 1
Έτος κατασκευής: 2026
Εμβαδόν ακινήτου: 98τ.μ.

Κωδικος ακινητου 21432
πωλειται νεοδμητο οροφοδιαμερισμα στην Ν.Πολιτεια Ευοσμου ,
η αποπερατωση θα γινει τον Απριλιο του 2026 , με θερμομονωσεις , θερμοπροσοψεις και κατασκευαζεται συμφωνα με τους νεους οικοδομικους κανονισμους ,
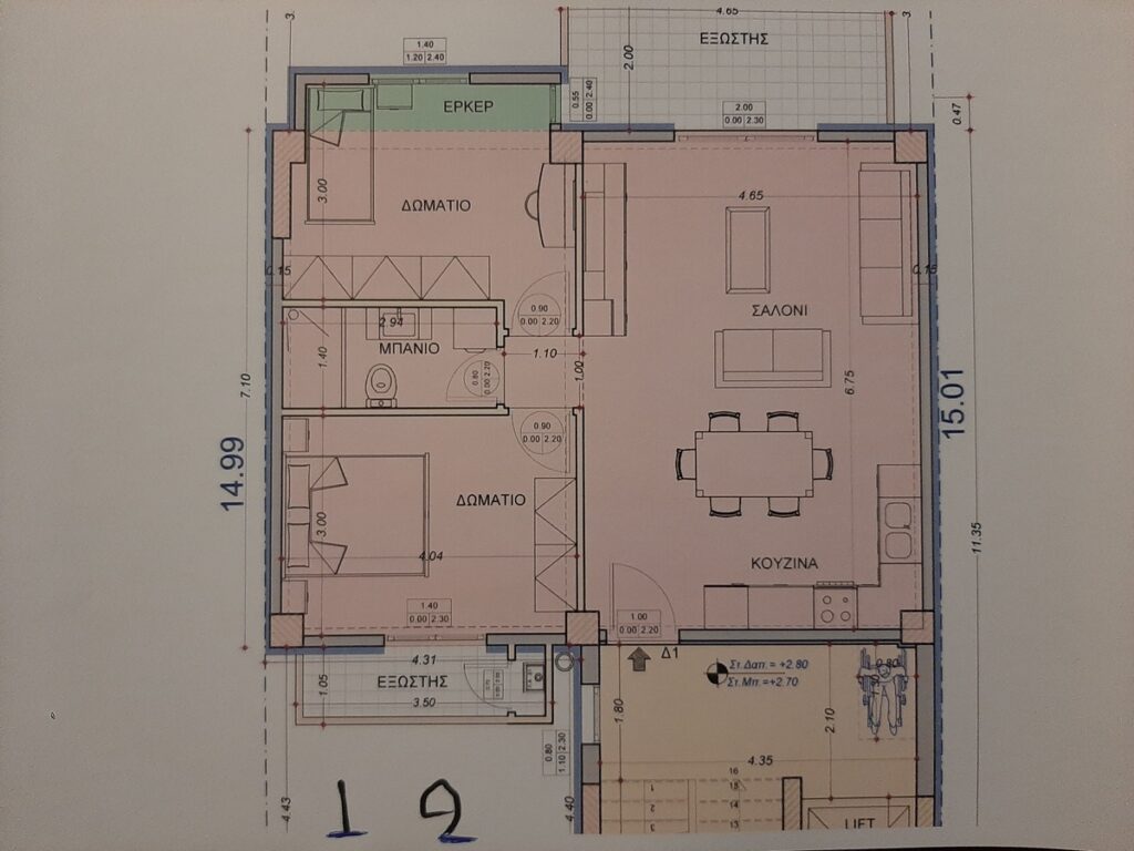
στα 98 τ.μ. ( 67 τ.μ. καθαρα ) , στον 1ο οροφο , με ασανσερ ,
με δυο δωματια , σαλοκουζινα και μπανιο με παραθυρο ,
εχει ατομικο φυσικο αεριο , το δαπεδο ειναι πλακακι ,
με κουφωματα pvc ανακλησης , διαθετει θωρακισμενη πορτα ,
με παρκινγκ πυλωτης και αποθηκη μεγαλη 30 τ.μ. ,
υπαρχει προσβαση για ατομα Α.Μ.Ε.Α. , εχει προεγκατασταση ηλιακου θερμοσιφωνα και a /c , ειναι πολυ φωτεινο , ευαερο ,
ευηλιο , διαμπερες , προσοψεως , βορειο , βρισκεται σε καλο σημειο και πολυ κοντα σε σχολεια , παρκα , φροντιστηρια , γηπεδα , καφε , αγορες , καταστηματα , φαρμακεια , με γρηγορη προσβαση στην περιφερειακη οδο αλλα και σε γειτονικες περιοχες , το κεντρο και η πλατεια Ευοσμου ειναι σε κοντινη αποσταση , αμεσα διαθεσιμο προς πωληση .
Τιμη πωλησης : 180.000 ευρω
Για την πρώτη υπόδειξη ακινήτου ορίζεται το ποσό των 10 ευρώ με ΦΠΑ ,
ανεξάρτητα από τον αριθμό των ακινήτων και των υποδείξεων που θα πραγματοποιηθούν .
Απαραίτητη η προσκόμιση αστυνομικής ταυτότητας και ΑΦΜ.
Για οποιαδήποτε πληροφορία , καλέστε στο Μεσιτικό Γραφείο Καραουλάνη
Τηλέφωνα επικοινωνίας : 2310765495 // 6987494959
Για περισσότερα ακίνητα επισκεφθείτε το site του γραφείου μας: www.karaoulani.gr

ΜΕΣΙΤΙΚΟ ΓΡΑΦΕΙΟ ΣΤΟΝ ΕΥΟΣΜΟ
Για την πρώτη υπόδειξη ακινήτου ορίζεται το ποσό των 10 ευρώ με ΦΠΑ , ανεξάρτητα από τον αριθμό των ακινήτων και των υποδείξεων που θα πραγματοποιηθούν . Απαραίτητη η προσκόμιση αστυνομικής ταυτότητας και ΑΦΜ. Για οποιαδήποτε πληροφορία , καλέστε στο Μεσιτικό Γραφείο Καραουλάνη Τηλέφωνα επικοινωνίας : 2310765495 // 6987494959 Για περισσότερα ακίνητα επισκεφθείτε το site του γραφείου μας: www.karaoulani.gr

Επιπλέον Χαρακτηριστικά

Αποθήκη
Ασανσέρ
Βεράντα
Θέση στάθμευσης
Κατοικίδια ευπρόσδεκτα
Πόρτα ασφαλείας
Αυτόνομη θέρμανση
Φυσικό αέριο
Ενεργειακή κλάση: Α+
Πρόσβαση: Άσφαλτος
Ζώνη: Οικιστική

Listing ID Number:

90483

Πληροφορίες αγγελιοδότη

vickykaraou@hotmail.com
Μέλος από: 2 έτη
Ο χρήστης είναι εκτός σύνδεσης
28ης Οκτωβριου 24 ευοσμος
Δείτε όλες τις Αγγελίες

Βρες στεγαστικό δάνειο με σταθερό επιτόκιο από 2%, με προσωπικό σύμβουλο, χωρίς κόστος.
Συμπλήρωσε τα στοιχεία σου και ένας σύμβουλος θα σε καλέσει χωρίς καμία χρέωση.

Προσθήκη στα αγαπημένα
Προσθήκη για σύγκριση
Αναφορά κατάχρησης
© 2025 agx.gr. All rights reserved.